AS+P developing a new residential quarter in Neuperlach as part of urban planning

Affordable housing, spacious areas of greenery, and a new infrastructure for the entire district: In Neuperlach, a neighborhood in the southeast of Munich, the plan is to create a new quarter with around 750 residential units, nurseries, social facilities, retail outlets, and commercial activities. AS+P is supervising the proceedings and is also responsible for the accompanying urban planning.
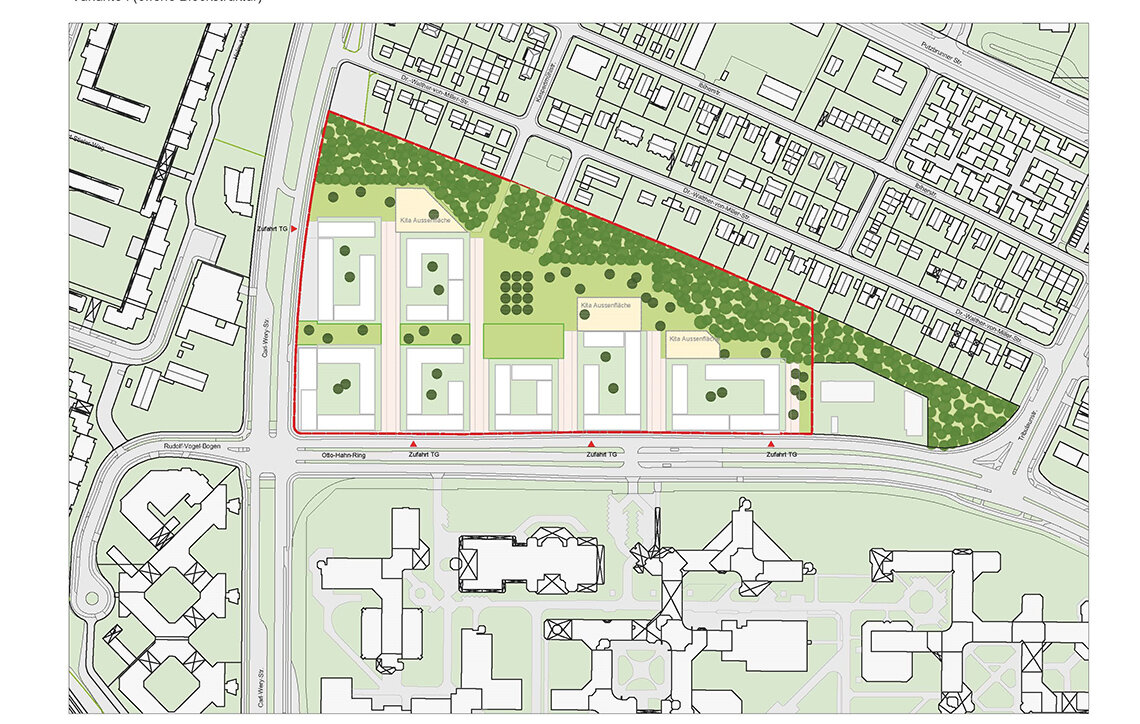
HIH Real Estate GmbH intends to get planning permission for the construction of a residential quarter with around 750 residential units on the “northern car park” on the Siemens site in Neuperlach. Alongside apartments the development will boast nurseries, social facilities such as a senior citizens’ meeting place, retail outlets, and commercial activities, e.g., a medical center. Car park decks will be built on the Siemens site that abuts to the south, and the existing parking spaces will be moved to the “eastern car park”.
AS+P has been assisting HIH with the project since as long ago as 2014 in order to ensure that there is a sound basis on which to begin the planning process. Ideas on how to develop the “northern car park” are being explored together with the City of Munich. To this end in-depth draft design proposals, among other things, were prepared that outline possible building structures and on the basis of which the key parameters for a future development can be derived. Parallel to this a resolution to initiate preparation of the legal zoning plan and define parameters is being prepared and will lay the foundations for further planning steps. At a later stage in the proceedings a two-phase open urban development and landscaping competition will be held, which AS+P will oversee.
Given that keeping the local population informed is an important part of the procedure, a residents’ meeting was also convened when compiling the key resolution on the overall parameters. Further events will follow as part of the planning procedure. A new website also serves as a platform for the exchange of information between all those involved in the project.
