Legal Zoning Plan “Güterbahnhof Nord”
Freiburg, 2011 - 2014
Coordination and management of the planning process and development of the Legal Zoning Plan for the site of the former freight depot (north) in Freiburg
Use
Bauleitplanung
Timeframe
2011 - 2014
Client
aurelis Real Estate GmbH & Co. KG

Urban development framework plan – structural study
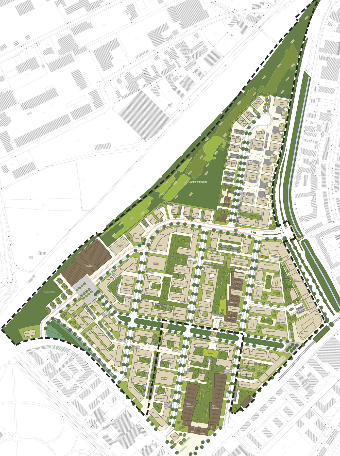
For the City of Freiburg the site of the former freight station "Nord", which is to be redeveloped, represents an important source of space on which residential and working facilities are to be built in mixed-usage and commercial areas. The City Council approved the urban development framework plan compiled by AS+P in 2011-2012, which serves as the conceptual basis for the legal zoning plans for specific areas drawn up by AS+P. Given the site's former use, manifold requirements are made of the legal zoning plan. On account of the presence of the common wall lizard, in addition to compensatory measures, provisions aimed at the protection of species require, for example, stipulations that are subject to conditions precedent. According to recommendations for spacing made in an expert opinion, a plant with hazardous incident potential results in restrictions to usage in the surrounding buffer strip. A rail track of an existing plant approved (for a limited period) in the plans has to be taken into consideration in the overall concept. Given the high density of buildings envisaged in the concept, special requirements are made of the reasoning behind the plans (violation of the ratio of developed to non-developed land). Furthermore, stipulations with regard to retail (in particular local supply outlets and not center-related retailing) serve to make the area more attractive. The complex legal zoning plan was drawn up in close cooperation with the client and various departments of the City of Freiburg.

Distribution of facilities and density