DZ-Bank
Frankfurt/Main, 1999 - 2002
Extension of the existing office tower of the DZ-Bank
Use
Architecture
GFA
7400 sqm
Timeframe
1999 - 2002
Client
DZ Bank AG

View from park with old office tower
The DZ-Bank has added a new wing to its office tower at the edge of Frankfurt's bank quarter. The new building enables the bank to concentrate formerly dispersed units on the site of its headquarters. Planning was based on building studies, which AS+P made for the entire western edge of the Opernplatz. AS+P served as the responsible general planner. Two-storey arcades open the seven-storey, closed-block structure towards the street and the structure culminates in a staggered upper floor. The scale of the structure as well as the materials used in its stone façade form a counterpart to the historic ensemble across the plaza. The building's architectural language, however, is clearly contemporary.

Street elevation with 2-storey arcades

atrium

Glass-roofed atrium

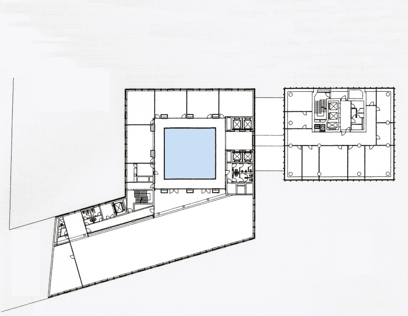
Floor plan first floor

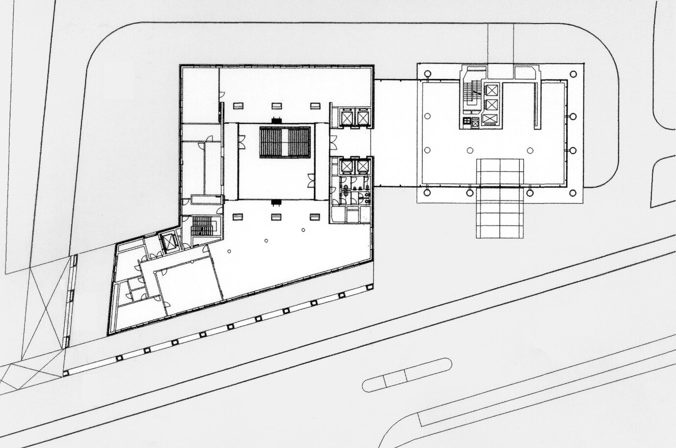
Floorplan ground floor

Floorplan ground floor

Floorplan ground floor